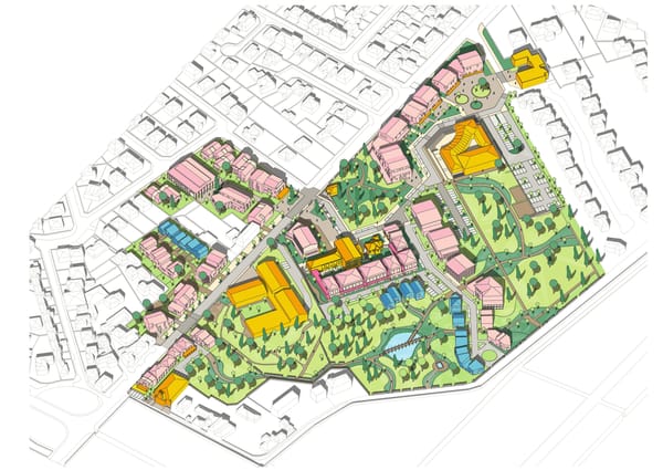
Le projet prévoit la réhabilitation d’un groupe de logement et la construction de nouveaux logements ainsi que d’une maison de retraite dans une cour fortement arborée.
Maitrise d’ouvrage: CDC Habitat Social
Année et durée de la mission : 2021 (4 mois)
Localisation : Viry Chatillon (91170)
Surface d’étude : 39 ha
Nos missions
Etude réglementaire
Diagnostic urbain et territorial
Réalisation d’un plan guide
Etude de scénarios de densification
Etude de stationnements
Programmation
Aménagement paysager et VRD



