Au 2 allée Octave Mirbeau, Planners accompagne CDC Habitat dans la requalification complète des espaces extérieurs de la résidence Les Tilleuls. Un projet de résidentialisation qui place sécurité, usages et paysage au cœur du quotidien des habitants.
Informations clés
| Maîtrise d’ouvrage | CDC Habitat social |
| Année & durée | 2025 – en cours |
| Localisation | Sartrouville (78500) |
| Surface d’étude | 2 ha |
Projet en cours — données susceptibles d’évoluer
Nos missions
- Étude préalable
- Étude de scénarios
- Mission de maîtrise d’œuvre complète
- APS / APD / Permis de construire
- CPAUPE
- Programmation
- Aménagement paysager
- Fiches de lots
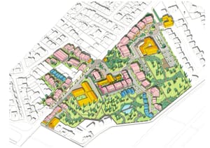
Le projet de résidentialisation de la résidence Les Tilleuls fait suite à la condamnation définitive des deux niveaux de parking souterrain, devenus sources d’insécurité et de trafics illicites. Cette fermeture a ouvert l’opportunité de requalifier l’ensemble des espaces extérieurs et de redonner une cohérence à la résidence, encore largement ouverte sur son environnement.
L’opération vise à :
- Résidentialiser la résidence en clarifiant les accès et en contrôlant les flux,
- Optimiser le stationnement en surface pour répondre aux besoins actuels,
- Construire de nouveaux édicules fonctionnels : abris vélos, locaux pour les encombrants et OM,
- Requalifier les espaces verts et créer un jardin d’agrément central,
- Développer des jardins partagés pour favoriser la convivialité et l’appropriation par les habitants.
Travaux principaux :
- Condamnation et remblais du parking souterrain + rampe nord,
- Réorganisation complète des cheminements piétons et fermetures des traversées,
- Création de 3 accès piétons sécurisés,
- Réaménagement du stationnement (18 places créées, 17 végétalisées),
- Construction de 4 abris vélos,
- Réalisation de 2 locaux d’entrée (sas nord/sud) avec OM et encombrants,
- Création d’un jardin d’agrément central avec buttes plantées et arbres de haute tige,
- Aménagement de jardins partagés en parcelle sud,
- Requalification paysagère des pieds d’immeubles et “épaisseurs végétales”.






